Designhaver ved Tor Haddeland

Moderne have i Skodsborg

Denne have i Skodsborg er designet af Tor Haddeland, Designhaver.dk og udført af Junckerhaven.

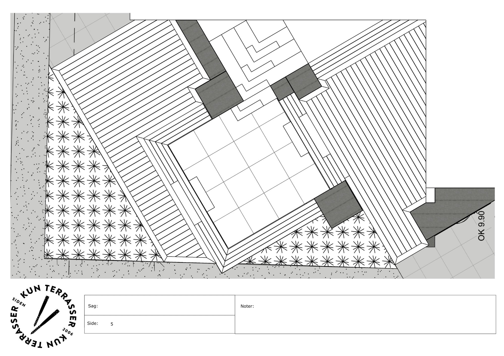
Projektet rummer en kombination af præcise belægninger, markante materialer og varieret beplantning. Indkørslen er udført i asfalt med chausséstenskanter, mens terrasser og stier er belagt med Kongsberg-fliser i 100×100 cm og plank 60×17,5 cm, kombineret med trapper i samme serie leveret af Høchendorff Granit.

Omkring havens rum er der opført cortenstålskanter og plantekummer, nogle op til 65 cm høje, smedet og udført af martlev.dk. Martlev stod desuden bag den svære trappe-nedgang i stål, som giver et markant arkitektonisk udtryk.

Langs huset og ved poolområdet er der etableret træterrasser i Ipe-hårdttræ, udført af kun-terrasser.dk. De varme træflader skaber en smuk kontrast til sten og stål og giver haven et eksklusivt udtryk.

Haven suppleres af en gennemført lysløsning med Atria uplights og HW 750 pullertlamper, der skaber stemning både sommer og vinter.

Beplantning:

  • Tæt hæk af taks, der giver en grøn ramme året rundt
  • Opstammet pilebladet pære (Pyrus salicifolia ’Pendula’) som solitærtræ
  • Formklippet dværgkristtorn (Ilex crenata) for arkitektonisk præcision
  • Klatrehortensia ’Miranda’ på espalier
  • Roser ’Egeskov’, lavendel og silkepæoner for blomstring og farvespil
  • Bunddække og græsser: blå bjørnegræs, sandrør, elefantgræs, lampepudsergræs, trædebregner m.fl.

Essens:

Tor Haddeland har skabt en designløsning, hvor materialer og planter spiller sammen. Junckerhaven har stået for anlægget, mens martlev.dk har leveret alt stål (kanter, kummer, trapper), Høchendorff Granit alt granit, og kun-terrasser.dk de smukke Ipe-træterrasser. Samlet giver det et resultat, hvor asfalt, Kongsberg-fliser, corten og træ bindes sammen af en lys- og beplantningsplan, der gør haven både funktionel, stemningsfuld og grøn hele året.

46 49 61 03 20 99 61 03 Send mail