Designhaver ved Tor Haddeland

Ternevej, Vejby

Denne have ved Ternevej i Vejby er designet af Tor Haddeland, Designhaver.dk og udført af Junckerhaven.

Haven er skabt som et moderne refugium med fokus på oplevelser, materialekvalitet og rolige linjer.
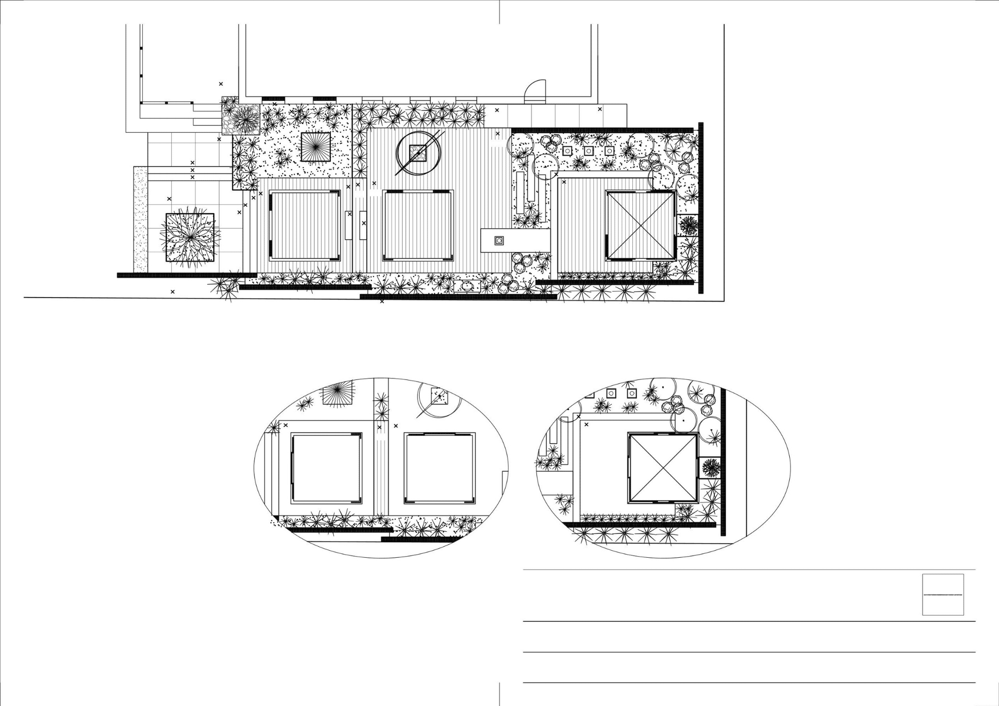
Belægningen er udført i Kongsberg-fliser 100×100 cm kombineret med trædesten og trin i Kongsberg-natursten, leveret af Høchendorff Granit. Omkring terrasser og bede er der etableret cortenstålskanter, og langs huset findes en varm kontrast i egetræsterrasser, udført som høvlede moduler.

Som særligt midtpunkt findes et spejlbassin, flankeret af gasbål og søjler, der tilfører både ro og dramatik. Haven rummer også tre små meditationshuse på hver 9 m² med skydedøre, en Buddhafigur som stemningsskaber og en amfitrappe i eg, der binder de forskellige niveauer sammen.

Haven suppleres af en gennemtænkt lysløsning med Atria uplights, der fremhæver træer, trapper og arkitektoniske detaljer i aftentimerne.

Beplantning (udvalg):

  • Flerstammet bærmispel, sydbøg og etagekornel som strukturgivere
  • Japansk løn og opstammet nordisk oliven for karakter og farvespil
  • Pilebladet pære og bambus som kontrastfyldt baggrund
  • Prydrige græsser: Calamagrostis ’Karl Foerster’, Miscanthus og Imperata ’Red Baron’
  • Bunddække: blå bjørnegræs, Carex ’Ice Dance’, bronzeblad m.fl.

Essens:

Tor Haddelands designidé og Junckerhavens udførelse har skabt en have, hvor vand, ild, træ og sten går op i en højere enhed. Resultatet er en moderne, meditativ have, hvor materialernes styrke og planternes blødhed smelter sammen til et helstøbt uderum.

46 49 61 03 20 99 61 03 Send mail